PROPERTY LOCATION:
KEY FEATURES:
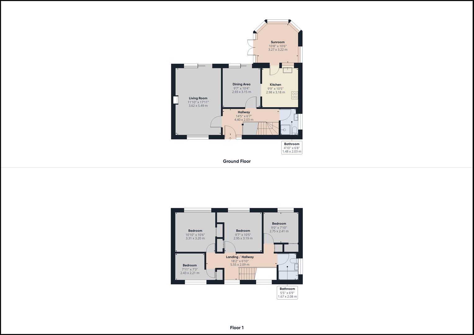
- FOUR BEDROOMS
- DETACHED
- CLOSE TO SCHOOLS
- DOWNSTAIRS SHOWER ROOM
- KITCHEN/DINING AREA
- CONSERVATORY
- OFF ROAD PARKING
- GARAGE
PROPERTY DETAILS:
VP - Presented to the market is this four bedroom detached home located within easy access to schools, bus routes and parks. The property comprises entrance hallway, living room, shower room, kitchen/dining room and conservatory. On the first floor there are four bedrooms and a bathroom suite. Externally there is off road parking at the rear of the property and a garage.
Council tax band - E













